Familienfreundlich Wohnen
- Energieklasse:
- Espec: 78 kWh/m2.a
- Etotal:
- Code (Energieausweis): RWPEB098637
- Jahrgang (Energieausweis):
- Gültig bis (Energieausweis):
Wir erschließen für Sie zwischen dem Ortskern von Eynatten und dem Grenzübergang „Köpfchen“dieses familienfreundliche Wohngebiet mit 18 Einfamilienhäusern um eine verkehrsberuhigte Spielstraße. Dieses neue Wohngebiet zeichnet sich durch ein naturverbundenes Umfeld, eine optimale Anbindung an die Hauptverkehrsachsen, den ÖPNV sowie die schnelle Erreichbarkeit von Schulen, Sportinfrastrukturen, zahlreichen Geschäften und Restaurants in Belgien und Deutschland aus.
Freuen Sie sich auf 2,3 oder 4 Fasadenhäuser mit unterschiedlichen Grundrissen und Wohnflächen auf 2 Vollgeschossen, in zeitgenössischer Architektur in Ziegelstein- oder Putzausführung .
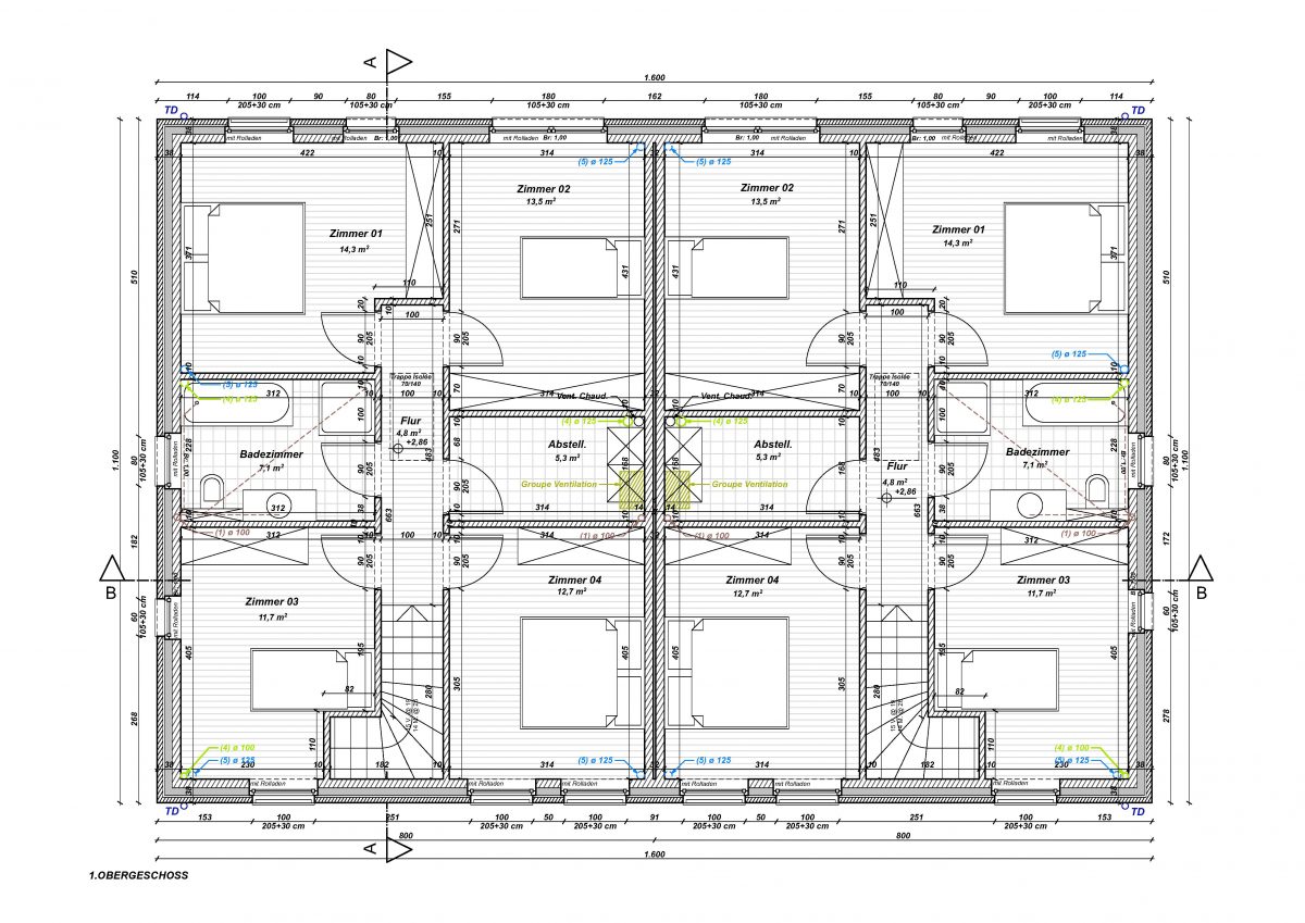
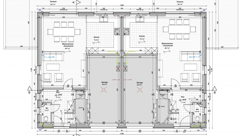
In diesem Exposé stellen wir das Los 1, linke Doppelhaushälfte mit Ziegelsteinverblendung auf einem Grundstück von ca. 428 m² mit Westausrichtung vor. Von der Eingangsdiele aus gelangen Sie in das helle WZ mit angrenzender Küche und Zugang zu Terrasse und Garten, das Gäste-WC sowie die Garage. Ins Obergeschoss führt von der Eingangsdiele aus eine geflieste Treppe wo sich 4 großzügige SZ, 1 Bad und 1 Abstellr. befinden. Zu erwähnen ist ebenfalls der begehbare Speicher (Stauraum).
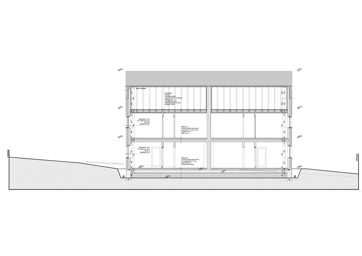
Höchste Energieeffizienz (PEB A und Q-Zen), kontrollierte Lüftungsanlage m. Wärmerückgewinnung , 3-fach Verglasung, Rollladen, Hausanschlüsse, Bodenbelag & Innenanstrich f. alle Räume außer Garage & Speicher, … gehören zur Grundausstattung.
Der angegebene Preis versteht sich zuzüglich ca.23 % Kaufnebenkosten (Notar, MwSt.,…).
