Léglise

Parzellierung in Wittimont, Léglise OHNE Bauvertrag

Grundstück: 881 m²
  • Energieklasse:
  • Espec:
  • Etotal:
  • Code (Energieausweis):
  • Jahrgang (Energieausweis):
  • Gültig bis (Energieausweis):

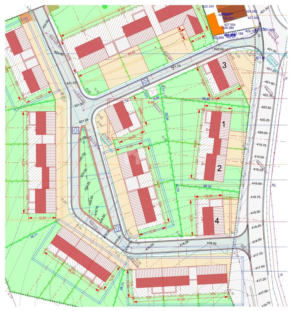
In Zusammenarbeit mit SOPIMO bieten wir Ihnen eine neue Parzellierung von 21 Baugrundstücken in Wittimont, Léglise an.

Das Grundstück Los 16 verfügt über eine Fläche von 811 m² und wird OHNE BAUVERTRAG angeboten.

Der angegebene Preis versteht sich ohne Mehrwertsteuer.

Kathleen GROSS
Kathleen GROSS (home & office building Belgium) +32 80 60 50 20 hob-immo@apilead.net

Anbieter kontaktieren

  • Dieses Feld dient zur Validierung und sollte nicht verändert werden.