Charmantes, renoviertes Einfamilienhaus in Nidrum – Großes Grundstück & Ausbaupotenzial
- Energieklasse:
- Espec: 235 kWh/m2.a
- Etotal: 41.174 kWh/a
- Code (Energieausweis): 20241106018734
- Jahrgang (Energieausweis):
- Gültig bis (Energieausweis):
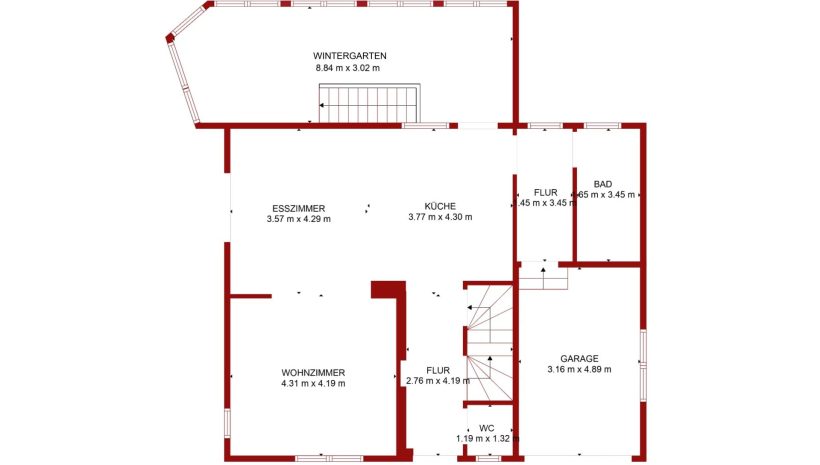
Willkommen in diesem wunderschön renovierten, freistehenden Einfamilienhaus in Nidrum (Gemeinde Bütgenbach). Mit einer Wohnfläche von 116 m² auf einem großzügigen Grundstück von 1.242 m² bietet dieses Haus viel Platz zum Wohlfühlen – und das in einer idyllischen Umgebung nahe dem Bütgenbacher See.
Highlights des Hauses:
– Komplett renoviert – Sofort einziehen & wohlfühlen
– 3 helle Schlafzimmer – Perfekt für Familien
– Ausbaufähiger Speicher – Zusätzlicher Wohnraum möglich
– Gesamtfläche von 259 m² – Viel Platz für Ihre Ideen
– Großer Garten – Ideal für Naturliebhaber & Hobbygärtner
– Top-Lage in der Gemeinde Bütgenbach – Ruhig & naturnah
Das Haus kombiniert modernen Wohnkomfort mit einer erstklassigen Lage. Der weitläufige Garten lädt zu entspannten Stunden im Freien ein, während der nahegelegene Bütgenbacher See zahlreiche Freizeitmöglichkeiten wie Wandern, Radfahren oder Wassersport bietet.
Ein perfektes Zuhause für Familien, Paare oder alle, die das Leben in einer naturnahen Umgebung genießen möchten.
-> Interessiert? Kontaktieren Sie uns für eine Besichtigung!
