Großzügiges Zweifamilienhaus in Recht – Ideal für Familien oder Investoren!
- Energieklasse:
- Espec: 404 kWh/m2.a
- Etotal: 74.801 kWh/a
- Code (Energieausweis): 20250209004152
- Jahrgang (Energieausweis): 2025
- Gültig bis (Energieausweis): 2035
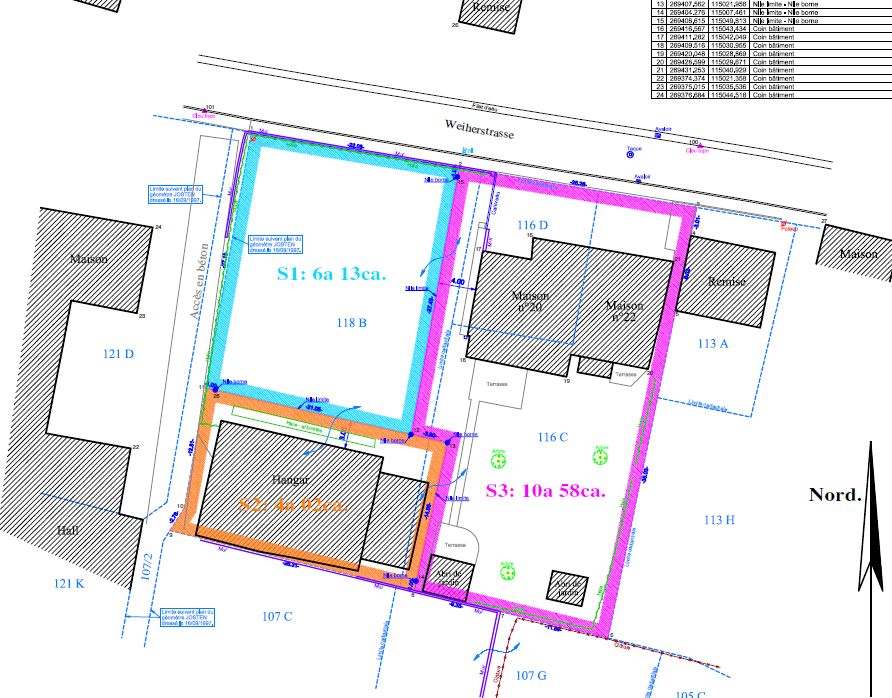
Zum Verkauf steht ein geräumiges Zweifamilienhaus in Recht mit einer Gesamtwohnfläche von ca. 200 m². Das Haus besteht aus zwei separaten Wohneinheiten, die jeweils über eigene Heizungs-, Strom- und Wasserversorgung verfügen.
Wohneinheit rechts (Nr. 20):
Erdgeschoss: Heizraum mit Ölzentralheizung, Abstellräume, Heizöltank, zwei Garagen und eine kleine Werkstatt.
1. Etage: Eine Diele, ein gemütliches Wohn- und Esszimmer mit Holzofen, angrenzende Veranda mit direktem Zugang zum Rasen, 2 Schlafzimmer (eins mit eigenem Waschbecken und Dusche), ein WC, eine Einbauküche sowie ein Badezimmer mit Badewanne und Waschbecken.
Wohneinheit links (Nr. 22):
Erdgeschoss: Diele, Wohnzimmer, Einbauküche, Heizraum mit direktem Ausgang zum Garten, Badezimmer mit Wanne, Waschbecken und WC.
1. Etage: Vier geräumige Schlafzimmer.
Diese Einheit benötigt eine Auffrischung.
Das Zweifamilienhaus eignet sich perfekt für verschiedene Wohnkonzepte: Ob zur Eigennutzung mit teilweiser Vermietung, als reine Kapitalanlage oder als große Familienresidenz – die Möglichkeiten sind vielfältig. Der wunderschöne Garten hinter dem Haus mit idyllischem Teich sorgt für eine angenehme Atmosphäre und bietet eine perfekte Erholungsmöglichkeit.
Zusätzlich besteht die Möglichkeit, eine angrenzende Baustelle von ca. 613 m² zu erwerben, was weiteres Potenzial für Ausbau oder Neubau bietet.
Kontaktieren Sie uns für weitere Informationen oder eine Besichtigung vor Ort !

Der Spezialist für den An- und Verkauf von Immobilien seit 1983!
Wir sind Ihr Immobilienpartner für die Deutschsprachige Gemeinschaft, die Wallonie und die Deutsche Eifel.