Wohnung 3 – Modernes Wohnen in ruhiger Grenzlage
- Energieklasse:
- Espec:
- Etotal:
- Code (Energieausweis):
- Jahrgang (Energieausweis):
- Gültig bis (Energieausweis):
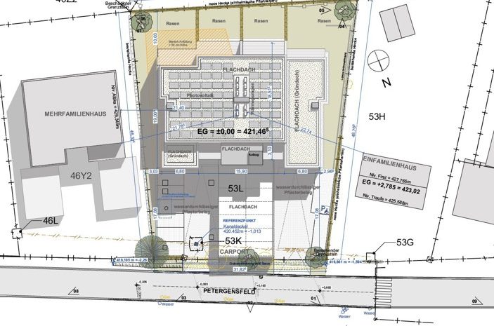
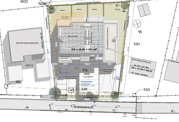
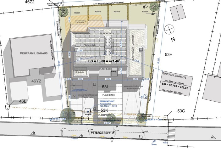
Neubauprojekt in Raeren-Petergensfeld – modernes Wohnen in ruhiger Grenzlage
In begehrter Lage von Raeren-Petergensfeld, unmittelbar an der Grenze zu Roetgen, entsteht ein hochwertiges Neubauprojekt mit zehn stilvollen Eigentumswohnungen. Die moderne Architektur vereint durchdachte Grundrisse mit zeitgemäßer Technik – ideal für alle, die naturnah leben und gleichzeitig von der Nähe zu Aachen profitieren möchten.
Alle Wohnungen verfügen über eine energieeffiziente Ausstattung mit PEB A, Fußbodenheizung über Wärmepumpe und einer gemeinschaftlichen Photovoltaikanlage. Carports sind bereits im Kaufpreis enthalten. Das Gebäude ist südlich ausgerichtet und bietet somit helle, sonnendurchflutete Wohnräume. Die Erdgeschosswohnungen verfügen über einen privaten Garten, während die Einheiten im Obergeschoss großzügige Terrassen mit Blick ins Grüne bieten.
Der Verkauf erfolgt im Rahmen der belgischen Loi Breyne mit Anwendung der Mehrwertsteuer auf den Infrastrukturbereich.
Die Vermarktung erfolgt mit einer Käuferprovision von 3 % zzgl. MwSt, d. h. 3,63 % inkl. MwSt auf den Kaufpreis.
Ein durch und durch modernes Wohnkonzept für Paare, Familien oder Berufspendler, die auf Qualität, Nachhaltigkeit und Wohnkomfort setzen.
Jetzt vormerken und weitere Informationen erhalten unter info@codia-immo.be oder +32 87 60 28 60.
www.codia-immo.be

Bei CODIA Immo vereinen wir Fachkompetenz und Herzblut, um Ihnen in der Euregio den besten Immobilienservice zu bieten. Ob Kauf, Verkauf, Vermietung oder Investment – unser erfahrenes Team ist für Sie da und berät Sie persönlich und transparent, Schritt für Schritt.
Unsere Region ist unser Zuhause, und wir lieben sie – von den malerischen Landschaften bis zu den lebendigen Städten und Gemeinden. Wir kennen die besten Orte, ob Sie Ruhe oder Nähe zu Aachen und Lüttich suchen, und finden mit Ihnen gemeinsam Ihr Traumzuhause.