Malmedy

Ein moderner Lebensstil im Herzen von Malmedy – Neubauwohnung (Projekt) mit Terrassen und Balkon

Schlafzimmer: 3 Wohnfläche: 142 m² Heizung: Öl Fußbodenheizung Baujahr: 2025
  • Energieklasse:
  • Espec:
  • Etotal:
  • Code (Energieausweis):
  • Jahrgang (Energieausweis):
  • Gültig bis (Energieausweis):

Stellen Sie sich vor, hier zu leben…
Mitten im Zentrum von Malmedy, in einer neuen Wohnung, nur wenige Schritte von Geschäften, gemütlichen Terrassen und allen Annehmlichkeiten entfernt. Jeden Morgen genießen Sie sanftes Licht, die Ruhe einer Einbahnstraße und einen schönen Blick auf den begrünten Innenhof auf der Rückseite.
Dieses einzigartige Projekt, dessen Bau im Herbst 2025 beginnt, vereint modernen Komfort, hochwertige Ausführungen und die Authentizität eines mit Sorgfalt durch lokale Handwerker sanierten Gebäudes.
Das Gebäude besteht aus drei Einheiten und wird im Rahmen einer Aufstockung realisiert. Die Gemeinschaftsbereiche, ausgestattet mit einem Aufzug, werden mit dem bestehenden Teil des Gebäudes geteilt.
Ein praktischer und lebendiger Standort
Die Wohnung befindet sich an der Place Albert 1er, einer begehrten Adresse, die praktisches Leben und Ruhe ideal vereint. Direkt vor Ihrer Haustür ist alles zu Fuß erreichbar:
Vielfältige Geschäfte, Bäckereien, Supermärkte und kleine, unabhängige Boutiquen
Restaurants für gesellige Mahlzeiten
Belebte Cafés und Terrassen, die zur einzigartigen Atmosphäre der Innenstadt beitragen
Alle wichtigen Dienstleistungen (Banken, Post, Apotheken, Verwaltungen)
Dank der Nähe zu Hauptverkehrsachsen und Bushaltestellen erreichen Sie die umliegenden Orte problemlos. Öffentliche Parkplätze befinden sich direkt in der Nähe – ideal für Ihre Besucher.
Die Spazier- und Wanderwege entlang der Warche und durch die umliegenden Hügel sind nur wenige Minuten entfernt – perfekt für Ausflüge oder sportliche Aktivitäten.
Sie genießen hier eine angenehme urbane Umgebung, die den Alltag erleichtert und es Ihnen ermöglicht, alles ohne Auto zu erledigen. Das Gebäude liegt an einer wenig befahrenen Einbahnstraße – überraschend ruhig, obwohl die belebte Innenstadt nur einen Steinwurf entfernt ist.
Auf der Rückseite des Gebäudes sorgt ein begrünter Innenhof für eine grüne, frische und ruhige Atmosphäre. Von Ihren Terrassen aus genießen Sie den freien Blick auf dieses kleine Naturparadies mitten in der Stadt.
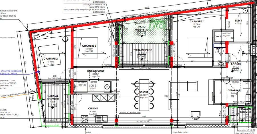
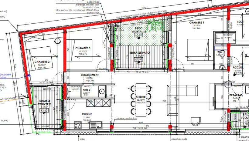
Die Wohnung
Diese hochwertige Wohnung im ersten Obergeschoss bietet Ihnen rund 142 m² zeitgemäße, funktionale Wohnfläche (brutto) sowie drei Terrassen – ideal zum Sonnenbaden, Lesen oder einem Glas Wein mit Freunden:
eine überdachte Straßenterrasse (ca. 7 m²), perfekt für den Morgenkaffee
ein gemütlicher Balkon (ca. 2,35 m²)
eine intime Patio-Terrasse (ca. 7,25 m²), mit Blick auf den begrünten Patio
Sie betreten die Wohnung über eine einladende Diele (ca. 7 m²) mit separatem WC und Abstellraum (ca. 6 m²), die zum lichtdurchfluteten Wohnbereich (ca. 38 m²) und zum Hauptschlafzimmer (ca. 17 m²) mit angrenzendem Duschbad (ca. 7 m²) führt.
Die offene Küche (ca. 9 m²) schließt direkt an den Wohnbereich an und bietet Zugang zur Terrasse zur Straßenseite – ein idealer Ort zum Empfangen und gemeinsamen Genießen.
Über den Flur gelangen Sie in den Schlafbereich mit zwei weiteren komfortablen Schlafzimmern (ca. 12,40 m² und 12,10 m²), eines davon mit Zugang zur Terrasse, sowie einem zweiten Duschbad.
Alle Schlafzimmer befinden sich auf der ruhigen Rückseite des Gebäudes – für erholsame Nächte.
Ein privater Keller im Untergeschoss rundet das Gesamtpaket ab.
Komfort & Ausstattung:
PVC-Fenster mit Dreifachverglasung für perfekte Isolierung
Geflieste Böden mit akustischer Isolierung für mehr Ruhe
Fußbodenheizung in Wohnraum, Küche und Bädern für angenehme Wärme
Photovoltaikanlage für jede Wohnung – für nachhaltigere Energie
Moderne Ausführungen und langlebige Materialien
Optionen (je nach Wunsch, Verfügbarkeit und Bauphase):
Luft-Wasser-Wärmepumpe
Erweiterung der Fußbodenheizung auf die Schlafzimmer
Handtuchheizkörper
Komfortlüftung mit Wärmerückgewinnung (Doppel-Flow)
Erweiterte Photovoltaikanlage
Im Preis enthalten:
Komplette Baukosten inklusive Grundstücksanteil
Nicht im Preis enthalten:
Ihre Einbauküche
Malerarbeiten in der Wohnung
Hausanschlüsse an die Versorgungsnetze
Preis: 498.000 € zzgl. MwSt.
Hinzu kommen Notarkosten, Eintragungsgebühren und weitere Nebenkosten.
Warum diese Wohnung wählen?
Weil Sie hier:
Im Zentrum von Malmedy wohnen und dennoch Ruhe genießen
In einem hellen, neuen und komfortablen Zuhause leben
Über Terrassen und einen begrünten Innenhof verfügen – ein Stück Natur mitten in der Stadt
Einen Ort finden, der Ihren Stil und Ihre Wünsche widerspiegelt
Kontaktieren Sie uns, um dieses einzigartige Projekt kennenzulernen und den ersten Schritt in Ihr neues Kapitel zu machen.

Place Albert Ier 3, Malmedy, Belgien
Bruno Creutz
Bruno Creutz (Euroimmo SRL) 0471 / 391287 info@euroimmo.net

Anbieter kontaktieren

  • Dieses Feld dient zur Validierung und sollte nicht verändert werden.