Moresnet – Wunderschöne Villa mit atemberaubendem Ausblick und hochwertiger Ausstattung!
- Energieklasse:
- Espec: 53 kWh/m2.a
- Etotal: 30 kWh/a
- Code (Energieausweis): 20240704005645
- Jahrgang (Energieausweis): 2024
- Gültig bis (Energieausweis): 2034
Beschreibung:
Willkommen in dieser beeindruckenden Villa in Moresnet, welche Komfort und Stil in perfekter Harmonie vereint. Dieses beeindruckende Anwesen wurde 2006 erbaut und besticht durch seine moderne Gestaltung und eine umfassende Modernisierung.
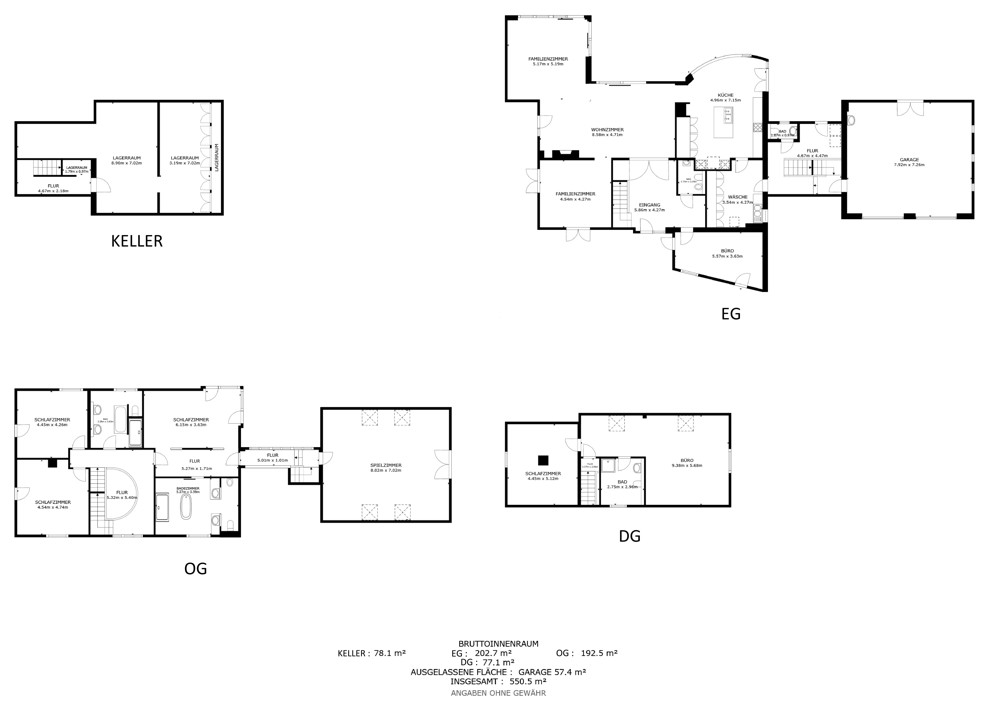
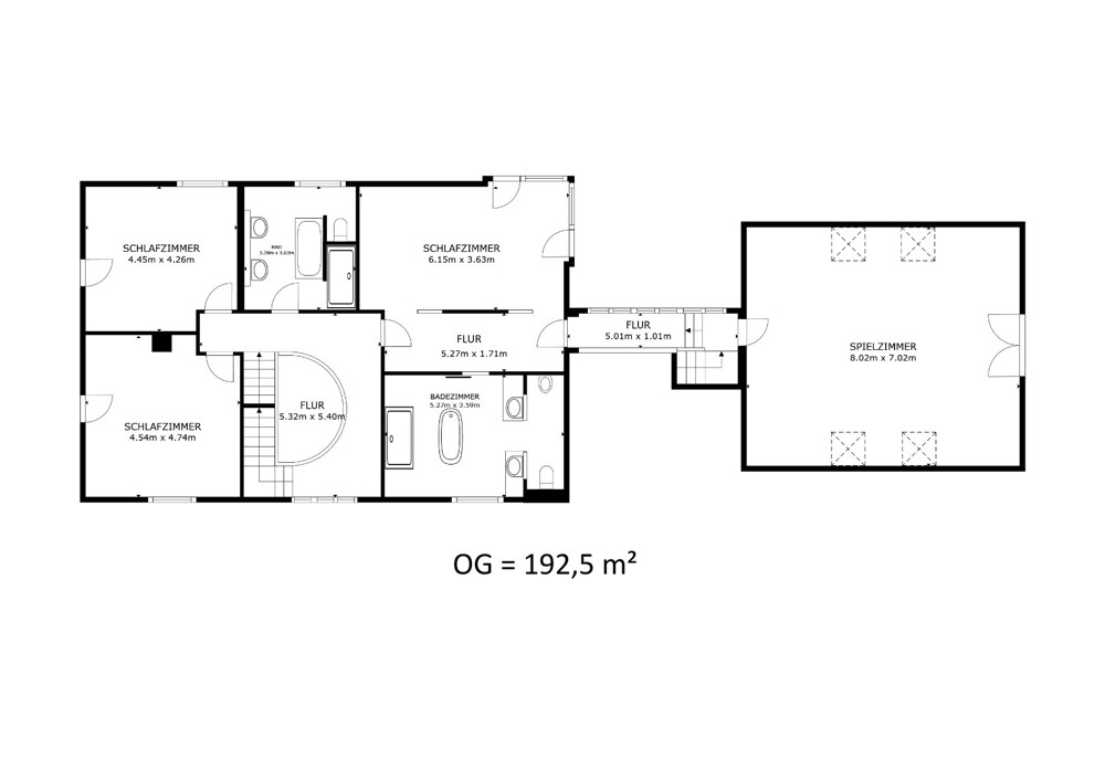
Auf einem großzügigen Grundstück von ca. 2.031 m² bietet dieses Zuhause eine luxuriöse Wohnfläche von ca. 472 m² sowie eine zusätzliche Nutzfläche von ca. 135 m². Mit insgesamt 9 Zimmern, darunter 7 Schlafzimmer und 3 elegante Badezimmer, bietet dieses Haus ausreichend Platz für die ganze Familie.
Die großzügige Terrasse und der einladende Balkon schaffen perfekte Orte für entspannte Stunden im Freien und eröffnen einen herrlichen Blick in die Natur.
Dieses außergewöhnliche Haus kombiniert großzügige Räumlichkeiten mit modernem Komfort und ist bereit, Ihren individuellen Wohntraum zu erfüllen. Nutzen Sie die Chance, diese einmalige Immobilie zu besichtigen und entdecken Sie Ihr neues Zuhause in Moresnet.
Kontaktieren Sie uns für weitere Informationen oder um einen Besichtigungstermin zu vereinbaren. Ihr neues Zuhause in Moresnet wartet auf Sie!
Ausstattung:
– Südausrichtung
– Außenpool (11m x 4,1m), beheizt über Erdwärmepumpe
– vollautomatische Schwimmbadsteuerung
– Poolhaus mit Umkleideräumen, Dusche & Außenküche
– Zwei Doppelgaragen (1 Doppelgarage m. integriertem Gartenhaus 125 m²)
– Solaranlage mit Warmwasserspeicher
– Photovoltaikanlage
– Aluminiumfenster
– 3-fach-Verglasung
– Velux-Fenster steuerbar
– elektrische Rollladen
– Fußbodenheizung (Unterstützung durch Wärmepumpe mit Erdbohrung)
– Lüftungsanlage mit Wärmerückgewinnung
– KNX-Haustechnik (Bussystem zur Gebäudesteuerung) mit IT-Verkabelung in jedem Zimmer
– WLAN-Kameras
– Videophone
– Überwachungskontakte an Türen und Fenstern
– Kamin
– Einbauküche mit Markengeräten und Quooker-Wasserhahn
– Naturstein Böden
– Rundgalerie
– Vollholz Eichentüren
– Vollholz Eichentreppe
– Glasschiebetüren
– Deckenhöhe Entree 5,30 m
– Deckenhöhe 2. Diele 5,70 m
– Deckenhöhe Wohnraum EG 2,55 m
– Einbauspots
– Einbauschränke
– u.v.m.
Lage:
Die Immobilie liegt rund 2 km von KELMIS, ca. 13 km von EUPEN und etwa 10 km von
Aachen entfernt. Die Autobahn KÖLN-LÜTTICH liegt etwa 9 km entfernt. Schulen sowie
Einkaufsmöglichkeiten (Supermärkte usw.) und verschiedene Dienstleistungsbetriebe
sind in KELMIS angesiedelt.
Sonstige Angaben:
PEB Nr.: 20240704005645
Gültig bis: 04.07.2034
Gesamter theoretische Primärenergieverbrauch: 30.153 kWh/Jahr
Spezifischer Primärenergieverbrauch: 53 kWh/m² Jahr
Energieklasse A
Kataster 3.888,36 €
