Astenet/Hergenrath – Hof Himmelsplatz
- Energieklasse:
- Espec:
- Etotal:
- Code (Energieausweis):
- Jahrgang (Energieausweis):
- Gültig bis (Energieausweis):
Beschreibung:
Zum Kauf steht ein einzigartiges, denkmalgeschützter Dreiseithof mit straßenseitiger Mauer und Tor, in exponierter Lage auf einer Kuppe mit Ausblick über das Hügelland bei Astenet. Dieses historische Anwesen bietet eine seltene Gelegenheit für Liebhaber antiker Architektur und idyllischer Lagen. Mit einer beeindruckenden Grundstücksgröße von etwa 15.500m² ist es ideal für Naturliebhaber und diejenigen, die großzügigen Raum für ihre Träume suchen. Zusätzlich können weitere 30.000m² erworben werden.
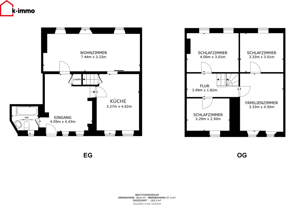
Das Bauernhaus selbst, mit einer Wohnfläche von ca. 97 m², bedarf einer umfassenden Sanierung. Die geschichtsträchtige Substanz des Hauses lädt dazu ein, den Charme vergangener Zeiten zu bewahren und in ein authentisches Wohnambiente zu verwandeln.
Ausstattung:
Wohnhaus:
Kellergeschoss:
– Fußboden: gefliest
– Wände: Bruchsteine oder Ziegelsteinmauerwerk
– Decke: Gewölbe in Bruchsteinen
EG:
Diele:
– Fußboden: gefliest
– Wände: sichtbares Bruchsteinmauerwerk, neue Eingangstür aus Holz, Holztreppe mit Stoßstufen zum 1. OG
– Decke: Gewölbe auf Holzbalken
– Holzfenster mit 2-Scheiben-Isolierverglasung
Küche:
– Fußboden: Vinyl Belag auf Holzboden
– Wände: Putz, Raufaser, gestrichen, Holzfußleisten, Gaskonvektor
– Decke: Putz, Raufaser, gestrichen
Wohn- und Esszimmer:
– Fußboden: Teppichboden auf Holzboden
– Wände: Gipsplatten, Raufaser, gestrichen, Holzfußleisten, Fensterbänke aus Holz, Gaskonvektor
– Decke: Gipsplatten, Raufaser, gestrichen
Badezimmer:
– Fußboden: Beton gefliest
– Wände: gekachelt
– Decke: Holzverkleidung
– Ausstattung: WC mit Wasserkasten aus Porzellan, Waschtisch, Badewanne, keine Heizung, Warmwassergaserhitzer in der Milchküche
1. OG:
Zimmernd Flur:
– Fußböden: Holzböden, Teppichböden
– Wände: Putz tapeziert, Holzfußleisten, Türen aus Holz, Fensterbänke aus Holz
– Decke: Putz, Raufaser gestrichen
DG:
Speicher :
– Fußboden: Holzboden ohne Belag.
– Wände: sichtbares Bruchsteinmauerwerk.
– Decke: sichtbarer Dachstuhl aus Holz, Dachhaut aus Teerpappe.
Ausstattung:
– Außenmauern: Bruchsteinmauerwerk.
– Innenwände: Bruchsteinmauerwerk oder Ziegelsteinmauerwerk, verputzt.
– Fußboden Erdgeschoss: Holzboden oder Beton.
– Fußboden Obergeschoss(e): Holzboden.
– Fußboden Dachgeschoss: Holzboden.
– Keine Zentralheizung
– Gaskonvektoren in zwei Räumen.
– Kein Anschluss an den öffentlichen Kanal.
– Coditel Anschluss.
– Telefon Anschluss.
– Kein Gas Anschluss.
– Wasser Anschluss.
– Elektrizitätsanschluss.
– Innentüren in Holz.
– Fensterrahmen mit doppelter Verglasung an der hinteren Fassade.
Stallung 1:
EG Ställe:
– Fußboden: Beton und teilweise Ziegelsteine.
– Wände: Verputzt.
– Decke: Sichtbarer Holzboden.
OG Heuboden:
– Fußboden: Holzboden.
– Wände: sichtbares Bruchsteinmauerwerk.
– Decke: Sichtbarer Dachstuhl aus Holz und sichtbare Dacheindeckung.
Überdachter Abstellplatz:
– Fußboden: Schotter
– Dach: Pultdach, Holzdachstuhl auf Ziegelsteinsäulen.
Stallung 2:
EG Ställe:
– Fußboden: Natursteine.
– Wände: sichtbares Bruchsteinmauerwerk.
– Decke: Sichtbarer Holzboden.
OG
Heuboden:
– Fußboden: Holzboden.
– Wände: sichtbares Bruchsteinmauerwerk.
– Decke: Sichtbarer Dachstuhl aus Holz und sichtbare Dacheindeckung.
Stallung 3:
EG Ställe:
– Fußboden: Pflastersteine.
– Wände: sichtbares Bruchsteinmauerwerk.
– Decke: Sichtbarer Holzboden.
OG Heuboden:
– Fußboden: Holzboden.
– Wände: sichtbares Bruchsteinmauerwerk.
– Decke: Sichtbarer Dachstuhl aus Holz und sichtbare Dacheindeckung.
Stallung 4:
EG Ställe:
– Fußboden: Ziegelsteine.
– Wände: sichtbares Bruchsteinmauerwerk.
– Decke: Sichtbarer Dachstuhl aus Holz und sichtbare Dacheindeckung.
Garage:
– Fußboden: Schotter.
– Wände: teilweise sichtbares Bruchsteinmauerwerk und teilweise sichtbares Betonblocksteinmauerwerk.
– Decke: Pultdach, sichtbarer Dachstuhl aus Holz und sichtbare Dacheindeckung aus Asbestzementwellplatten.
Außen – Fassaden zum Hof:
Bruchsteine, alle Fenster und Türen sind mit einer Umrandung aus Blaustein ausgestattet, die Fensterrahmen und die Türen sind alle aus Holz. Außer zwei Fenster, sind alle Fenster mit einfacher Verglasung. Das Wohnhaus hat eine Kastenrinne aus Holz mit Zink Belag, alle Stallungen haben halbrunde Dachrinnen in Zink. Alle Fallrohre sind aus Zink
– Hinter dem Haus steht ein Flüssiggastank
Lage:
Das Bauernhaus befindet sich in dem malerischen Ort Astenet, eingebettet in die sanfte Hügellandschaft Belgiens. Diese idyllische Lage bietet eine harmonische Mischung aus ländlicher Ruhe und guter Verkehrsanbindung zu den urbanen Zentren der Region. Astenet ist bekannt für seine naturnahe Umgebung und bietet zahlreiche Möglichkeiten für Outdoor-Aktivitäten wie Wandern, Radfahren und Reitausflüge. Dennoch sind alle Annehmlichkeiten des täglichen Bedarfs, wie Geschäfte, Schulen und Gastronomie, in der nahen Umgebung leicht zu erreichen. Die Nähe zur deutsch-belgischen Grenze eröffnet zudem vielfältige kulturelle und wirtschaftliche Möglichkeiten in beiden Ländern. Entdecken Sie die Ruhe und Schönheit des Landlebens, nur einen Steinwurf entfernt von den pulsierenden Städten der Region.
GEOGRAFISCHE LAGE :
Das zu schätzende Objekt befindet sich in Walhorn westlich der Hochstraße an folgenden
Entfernungen :
· an 3,1 Km der Schule von Walhorn
· an 1,4 Km der Schule von Hergenrath
· an 3,2 Km vom Ortszentrum Walhorn
· an 1,2 Km vom Ortszentrum Hergenrath
· an 3,3 Km vom Ortszentrum Kelmis
· an 3,7 Km vom einem Sportzentrum
· an 4,2 Km von der Gemeindeverwaltung
· an 3,8 Km von einem Kaufhaus
· an 200 m von einer Bushaltestelle
· an 2,2 Km von der Bahnhaltestelle in Hergenrath
Sonstige Angaben:
Da es sich um ein altes sanierungsbedürftiges Bauernhaus ohne Heizung handelt, wird kein PEB Energieausweis benötigt.
Es können weitere 30.000m² erworben werden.