Exklusives Appartement Nr. 1 – Ihr neues Zuhause mit Stil und Komfort!
- Energieklasse:
- Espec: 114 kWh/m2.a
- Etotal: 13.951 kWh/a
- Code (Energieausweis): 20231009018547
- Jahrgang (Energieausweis):
- Gültig bis (Energieausweis):
Exklusives Appartement Nr. 1 – Ihr neues Zuhause mit Stil und Komfort!
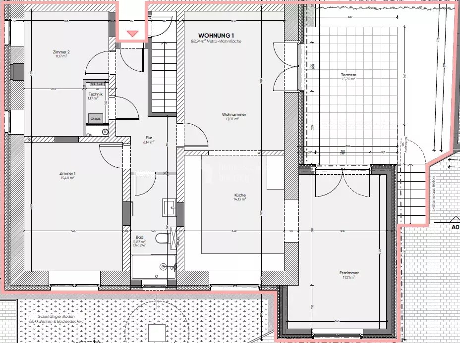
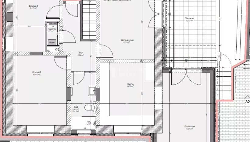
Dieses großzügige Apartment bietet Ihnen auf einer Wohnfläche von 88,24 m² ein durchdachtes Raumkonzept:
Flur
– Zwei Schlafzimmer – für erholsame Nächte
– Modernes Badezimmer mit WC
– Elegante Küche – inklusive!
– Helles Wohnzimmer – ideal zum Entspannen
– Gemütliches Esszimmer – perfekt für gesellige Abende
– Technikraum – für zusätzlichen Stauraum
Weitere Highlights:
Terrasse – genießen Sie entspannte Stunden im Freien
Privater Außenstellplatz & Garage – komfortabel und sicher
Hochwertige Ausstattung inklusive: Küche, Bad, Innentüren und Wandfarbe sind im Preis inbegriffen!
Alle Preise verstehen sich zzgl. MwSt.
Kontaktieren Sie uns gerne für mehr Infos oder einen persönlichen Besichtigungstermin:
+32 80 60 50 20
