St.Vith

Residenz „Tomberg Terrassen“ in Rodt – APPARTEMENT 3

Schlafzimmer: 3 Wohnfläche: 85 m² Heizung: Gas Fußbodenheizung Baujahr: 2025
  • Energieklasse:
  • Espec: 93  kWh/m2.a
  • Etotal: 10.509  kWh/a
  • Code (Energieausweis): 20231002010318
  • Jahrgang (Energieausweis):
  • Gültig bis (Energieausweis):

Entdecken Sie diese neue Residenz „Tomberg Terrassen“ in einer ruhigen Umgebung. Auf einem großzügigen Grundstück von 5.000 m² entsteht ein modernes Ensemble mit 9 hochwertigen Wohneinheiten.

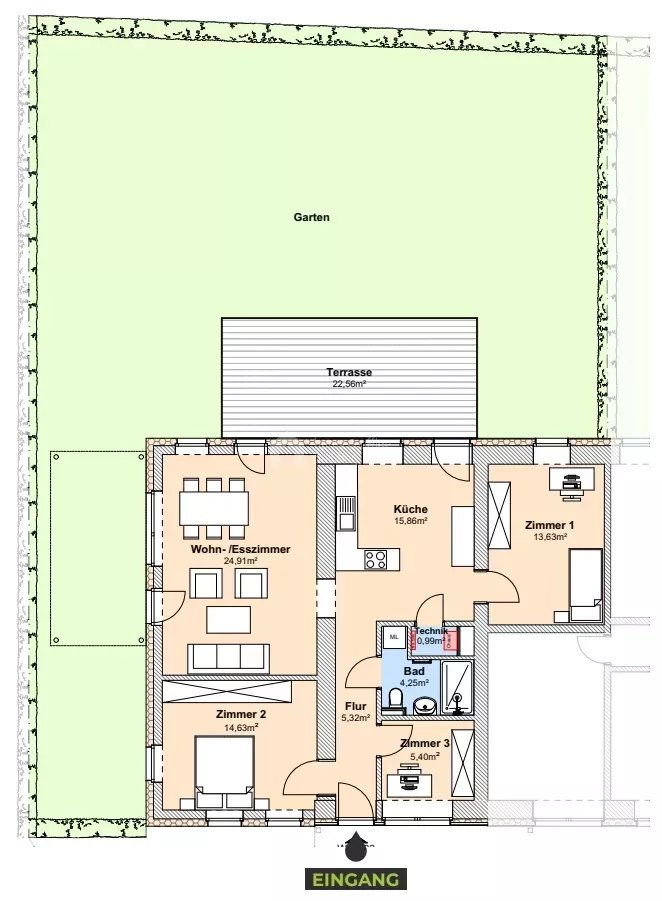
Das Appartement 3 verfügt über eine Wohnfläche von 85,00 m² und setzt sich wie folgt zusammen :

Flur, 3 Schlafzimmer, Badezimmer, WC, Wohn-Esszimmer mit offener Küche, Technikraum. Zudem verfügt die Wohnung über eine Terrasse mit Garten und Gartenhaus, einen Außenstellplatz und eine Garage.

Des Weiteren ist zu vermerken dass unter anderem die Küche, Badezimmer, Türen und Anstrich inklusive sind.

Rodt ist bekannt für seine zahlreichen Wanderwege und bietet im Winter schöne Langlaufpisten. Wichtig zu erwähnen ist ebenfalls die zentrale Lage, denn Rodt liegt nicht nur in unmittelbarer Nähe zu St.Vith mit all seinen wichtigen Infrastrukturen des Alltags, sondern auch nur wenige Kilometer von Luxemburg und Deutschland entfernt.

Die angegebenen Preise verstehen sich ohne Mehrwertsteuer.

Die Residenz ist so gut wie bezugsfertig.

Kontaktieren Sie uns für weitere Informationen oder eine persönliche Besichtigung! +32 80 60 50 20

Kathleen GROSS
Kathleen GROSS (home & office building Belgium) +32 80 60 50 20 hob-immo@apilead.net

Anbieter kontaktieren

  • Dieses Feld dient zur Validierung und sollte nicht verändert werden.