Eupen

ZENTRAL, MODERN, KOMFORTABEL: – ZWEI-SCHLAFZIMMER-NEUBAUWOHNUNGEN

Schlafzimmer: 2 Bäder: 1 Wohnfläche: 80 m² Heizung: Gas Fußbodenheizung
  • Energieklasse:
  • Espec: 108  kWh/m2.a
  • Etotal: 8.639  kWh/a
  • Code (Energieausweis): 20241118502140
  • Jahrgang (Energieausweis): 2024-11-18
  • Gültig bis (Energieausweis):

Wohnen in der Residenz „Eupener Terrassen“ bedeutet, urbanes Lebensgefühl mit modernem Wohnkomfort zu vereinen.
Die 2025 fertiggestellte Wohnanlage besteht aus zwei viergeschossigen Gebäuden mit insgesamt 28 Wohneinheiten.
Die zentrale Lage im Herzen der ostbelgischen Hauptstadt ermöglicht es, das Stadtleben in vollen Zügen zu genießen: Ein Großeinkaufsmarkt und Busverbindungen befinden sich direkt vor der Tür, während Kultur, Shopping, Natur und Freizeitmöglichkeiten in unmittelbarer Umgebung liegen. Gleichzeitig besteht eine optimale Anbindung an alle wichtigen Verkehrsachsen, sodass alles, was man für den Alltag braucht, schnell und bequem erreichbar ist. Diese Wohnadresse bietet sowohl für jüngere als auch für ältere Generationen ein hohes Maß an Lebensqualität.
Ein weiterer großer Vorteil ist das barrierefreie Konzept der Residenz. Vom Keller bis in das Dachgeschoss sind alle Bereiche bequem über Aufzüge erreichbar, und sämtliche Wohnungen sind so gestaltet, dass auch Personen mit eingeschränkter Mobilität problemlos wohnen können.
Die moderne Architektur überzeugt durch klare Linien und helle Räume, während durchdachte Grundrisse eine angenehme und funktionale Raumaufteilung gewährleisten. Jede Wohnung verfügt über eine großzügige Terrasse oder einen Balkon, teilweise mit Gartenbereich und Gartenhaus, sowie über einen eigenen Kellerraum und einen PKW-Stellplatz in der Tiefgarage. Dank ihrer ausgezeichneten Orientierung und dem direkten Zugang vom Wohnzimmer aus werden die Außenbereiche zu einer natürlichen Erweiterung des Wohnraums und bieten zusätzlichen Platz zum Entspannen.
Die Wohnungen überzeugen mit einer einladenden Diele, einer in den Wohnbereich integrierten Einbauküche, einem praktischen Hauswirtschaftsraum, zwei Schlafzimmern, einem Badezimmer sowie modernen Ausstattungsmerkmalen wie Videogegensprechanlage, Sicherheitstür und einem Aufzug im Gebäude.
Ausstattung im Detail:
Hochwertige Einbauküche mit Backofen, Mikrowelle, Kühlschrank & Gefrierschrank sowie Geschirrspüler
Bodenbeläge: Fliesen in Wohnbereich, Bad, Hauswirtschaftsraum und Flur / Laminat in den Schlafräumen
Badezimmer mit italienischer Dusche, Waschtisch mit Unterschrank und Spiegel
Fußbodenheizung
Geflieste Terrassen & Trennwände
Helle Wohnbereiche, hervorragende Schalldämmung und eine ausgezeichnete Energieeffizienz sorgen für ein angenehmes Raumklima und niedrige Betriebskosten. Beheizt wird die Residenz über eine individuelle und effiziente Gasheizung.
Die „Eupener Terrassen“ richten sich an anspruchsvolle Stadtbewohner, die Wert auf Komfort, Stil und eine zukunftssichere Wohnlösung legen. Für jede Lebensphase und Lebenssituation gibt es das passende Wohnkonzept – ob Single, Paar oder für die ältere Generation.
Angebot an 2 Schlafzimmer-Wohnungen
Die hier vorgestellten Wohnungen verfügen über zwei Schlafzimmer und ein Badezimmer.
Hinweis: Die angegebenen Wohnflächen sind Bruttoflächen
GEBÄUDE A – AACHENER STRAßE
WOHNUNG 2 ( ERDGESCHOSS) MIT DIREKTEM EINGANGSBEREICH – WOHNFLÄCHE CA. 80 M² – TERRASSE CA. 29 M²
MIETE: 890 € + 100 € GEMEINSCHAFTSKOSTEN
Flurbereich – offener Wohnbereich mit integrierter Einbauküche ca. 34 m² – Nachtflur mit Gäste-WC und Hauswirstschaftsraum – Schlafzimmer ca. 10 m² + ca. 7 m² – Badezimmer mit italienischer Dusche
WOHNUNG 4 ( ERDGESCHOSS) MIT DIREKTEM EINGANGSBEREICH – WOHNFLÄCHE CA. 94 M² – TERRASSE CA. 35 M²
MIETE: (OPTIONAL MOBLIERT ODER UNMÖBLIERT)
UNMÖBLIERT : 960 € + 100 € GEMEINSCHAFTSKOSTEN
MÖBLIERT: 1.310 € +100 GEMEINSCHAFTSKOSTEN
Flurbereich – offener Wohnbereich mit integrierter Einbauküche ca. 40 m² – Hauswirstschaftsraum –Nachtflur mit Gäste-WC – Schlafzimmer ca. 10 m² + 9 m² – Badezimmer mit italienischer Dusche
WOHNUNG 5 ( ERDGESCHOSS) MIT DIREKTEM EINGANGSBEREICH –
WOHNFLÄCHE CA. 87 M² + TERRASSE CA. 26 M²
MIETE: 890 € + 100 € GEMEINSCHAFTSKOSTEN
Flurbereich – offener Wohnbereich mit integrierter Einbauküche ca. 38 m² – Nachtflur mit Gäste-WC und Hauswirtschaftsraum – Schlafzimmer ca.9 m² + 10 m² – Badezimmer mit italienischer Dusche
WOHNUNG 10 ( ERSTES OBERGESCHOSS)
WOHNFLÄCHE CA. 89 M² + TERRASSE CA. 6 M² – BALCON CA. 6 M²
MIETE: 870 € + 100 € GEMEINSCHAFTSKOSTEN
Flurbereich – offener Wohnbereich mit integrierter Einbauküche ca. 34 m² – Hauswirtschaftsraum- Nachtflur mit Gäste-WC- Schlafzimmer ca. 8 m² + 12 m² – Badezimmer mit italienischer Dusche
WOHNUNG 11 ( ERSTES OBERGESCHOSS)
WOHNFLÄCHE CA. 105 M² + TERRASSE CA. 24 M²
MIETE: 960 € + 100 € GEMEINSCHAFTSKOSTEN
Flurbereich – offener Wohnbereich mit integrierter Einbauküche ca. 49 m² – Hauswirtschaftsraum- Nachtflur mit Gäste-WC- Schlafzimmer ca. 8 m² + 12 m² – Badezimmer mit italienischer Dusche
WOHNUNG 12 ( ERSTES OBERGESCHOSS)
WOHNFLÄCHE CA. 80 M² + TERRASSE CA. 8 M²
MIETE: 870 € + 100 € GEMEINSCHAFTSKOSTEN
Flurbereich mit Hauswirtschaftsraum– offener Wohnbereich mit integrierter Einbauküche ca. 39 m² – Nachtflur mit Gäste-WC- Schlafzimmer ca. 8 m² + 12 m² – Badezimmer mit italienischer Dusche
WOHNUNG 13 ( ERSTES OBERGESCHOSS)
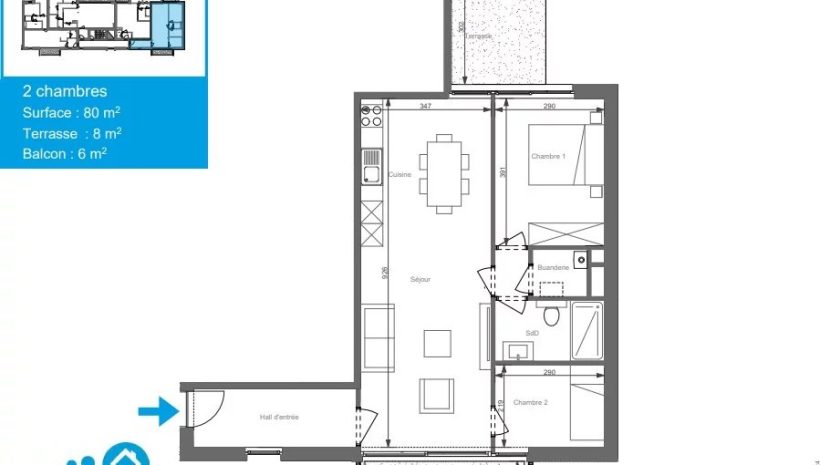
WOHNFLÄCHE CA. 80 M² + TERRASSE CA. 8 M² + BALCON CA. 6 M²
MIETE: 870 € + 100 € GEMEINSCHAFTSKOSTEN
Flurbereich– offener Wohnbereich mit integrierter Einbauküche ca. 32 m² – Nachtflur mit Hauswirtschaftsraum- Schlafzimmer ca. 6 m² + 11 m² – Badezimmer mit italienischer Dusche
WOHNUNG 18 ( ZWEITES OBERGESCHOSS)
WOHNFLÄCHE CA. 79 M² + TERRASSE CA. 10 M² – BALCON CA. 6 M²
MIETE: 870 € + 100 € GEMEINSCHAFTSKOSTEN
Flurbereich– offener Wohnbereich mit integrierter Einbauküche ca. 31 m² – Nachtflur mit Gäste-WC- Hauswirtschaftsraum – Heizungsraum – Schlafzimmer ca. 14 m² + 8 m² – Badezimmer mit italienischer Dusche

WOHNUNG 21 ( ZWEITES OBERGESCHOSS)
WOHNFLÄCHE CA. 79 M² + TERRASSE CA. 8 M² – BALCON CA. 6 M²
MIETE: 870 € + 100 € GEMEINSCHAFTSKOSTEN
Flurbereich– offener Wohnbereich mit integrierter Einbauküche ca. 32 m² – Nachtflur mit Hauswirtschaftsraum – Schlafzimmer ca. 11 m² + 6 m² – Badezimmer mit italienischer Dusche

GEBÄUDE B – BUSHOF
WOHNUNG 6 ( ERDGESCHOSS) – WOHNFLÄCHE CA. 88 M² – TERRASSE CA. 20 M²
MIETE: 890 € + 100 € GEMEINSCHAFTSKOSTEN
Flurbereich mit Gäste-WC – Badezimmer – Hauswirtschaftsraum – offener Wohnbereich mit integrierter Einbauküche ca. 36 m² – Nachtflur mit Gäste-WC und Hauswirtschaftsraum – Schlafzimmer ca. 11 m² + ca. 7 m² – Badezimmer mit italienischer Dusche
WOHNUNG 7 ( ERDGESCHOSS) – WOHNFLÄCHE CA. 105 M² – TERRASSE CA. 42 M² MIT GARTENHAUS CA. 4 M²
MIETE: 960 € + 100 € GEMEINSCHAFTSKOSTEN
Flurbereich – offener Wohnbereich mit integrierter Einbauküche ca. 53 m² – Schlafzimmer ca. 13 m² – Nachtflur mit Gäste-WC – Hauswirtschaftsraum – Schlafzimmer ca. 12 m² – Badezimmer mit italienischer Dusche
WOHNUNG 8 ( ERDGESCHOSS) – WOHNFLÄCHE CA. 81 M² – TERRASSE CA. 22 M² MIT GARTENHAUS CA. 4 M²
MIETE: 890 € + 100 € GEMEINSCHAFTSKOSTEN
Flurbereich – offener Wohnbereich mit integrierter Einbauküche ca. 35 m² – Nachtflur mit Gäste-WC und Heizungsraum – Schlafzimmer ca. 10 m² + ca. 8 m² – Badezimmer mit italienischer Dusche
WOHNUNG 15 ( ERTES OBERGESCHOSS) – WOHNFLÄCHE CA.97 M² – TERRASSE CA. 10 M²
MIETE: 920 € + 100 € GEMEINSCHAFTSKOSTEN
Flurbereich – offener Wohnbereich mit integrierter Einbauküche ca. 52 m² – Schlafzimmer ca. 8 m² – Nachtflur mit Gäste-WC – Hauswirtschaftsraum – Schlafzimmer ca. 10 m² – Badezimmer mit italienischer Dusche

WOHNUNG 17 ( ERSTES OBERGESCHOSS) – WOHNFLÄCHE CA. 107 M² – TERRASSE CA. 11 M²
MIETE: 960 € + 100 € GEMEINSCHAFTSKOSTEN
Flurbereich mit Gäste-WC – Schlafzimmer ca. 10 m² – Badezimmer – Schlafzimmer ca. 11 m² – offener Wohnbereich mit integrierter Einbauküche ca. 46 m² – Hauswirtschaftsraum
WOHNUNG 23 ( ZWEITES OBERGESCHOSS) – WOHNFLÄCHE CA.90 M² – TERRASSE CA. 22 M²
MIETE: 960 € + 100 € GEMEINSCHAFTSKOSTEN
Flurbereich– offener Wohnbereich mit integrierter Küche ca. 39 m² – Nachtflur mit Gäste-WC – Schlafzimmer ca. 13 m² – Nachtflur mit Hauswirtschaftsraum – Schlafzimmer ca. 13 m² – Bad mit italienischer Dusche
WOHNUNG 24 ( ZWEITES OBERGESCHOSS) – WOHNFLÄCHE CA. 101 M² – TERRASSE CA. 5 M² + BALCON CA. 4 M²
MIETE: 960 € + 100 € GEMEINSCHAFTSKOSTEN
Flurbereich mit Gäste-WC – Schlafzimmer ca. 11 m² – Badezimmer -Nachtflur – Schlafzimmer ca. 11 m² – offener Wohnbereich mit integrierter Einbauküche ca. 38 m² – Hauswirtschaftsraum
Diese Zwei-Schlafzimmer-WHG eignen sich perfekt für ein zwei bis drei Personen als hochwertige Stadtwohnung mit hohem Wohlfühlfaktor. Hier wohnt man zeitgemäß, komfortabel und mitten im Leben.

Aachener Strasse 30, Eupen, Belgien
Bruno Creutz
Bruno Creutz (Euroimmo SRL) 0471 / 391287 info@euroimmo.net

Anbieter kontaktieren

  • Dieses Feld dient zur Validierung und sollte nicht verändert werden.