St.Vith

Exklusives Appartement Nr. 1 – Ihr neues Zuhause mit Stil und Komfort!

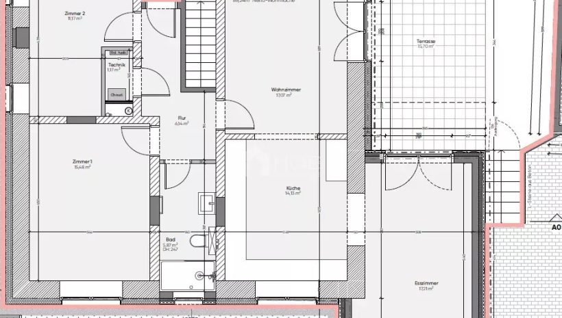
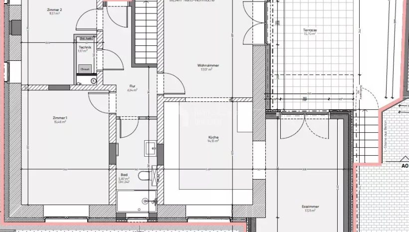
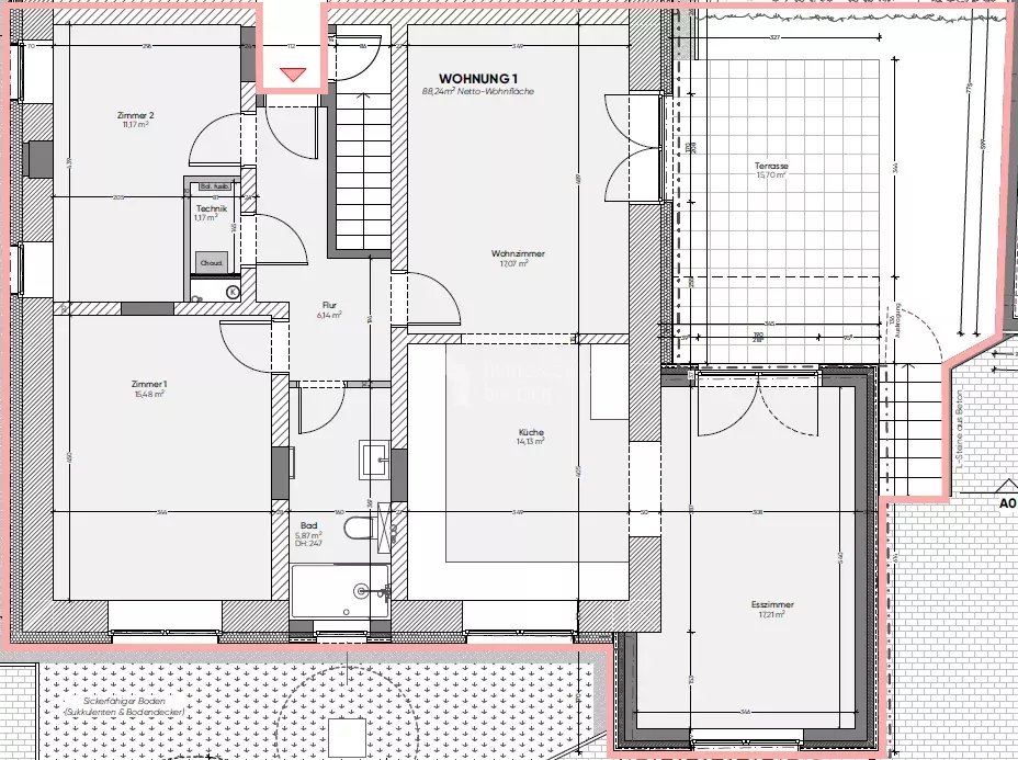
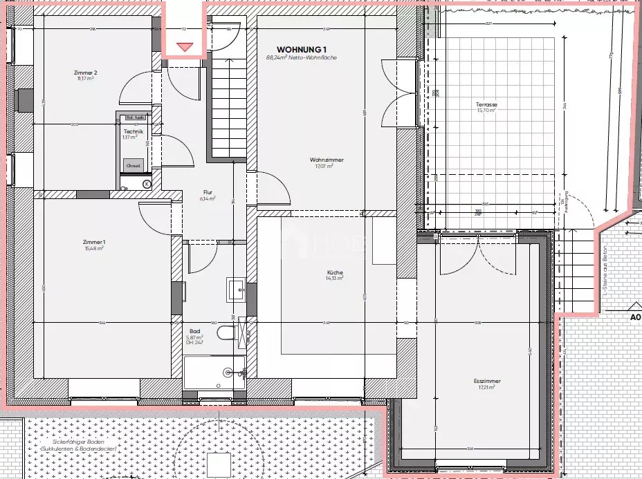
Schlafzimmer: 2 Wohnfläche: 88 m² Heizung: Gas Fußbodenheizung Baujahr: 2025
  • Energieklasse:
  • Espec: 114  kWh/m2.a
  • Etotal: 13.951  kWh/a
  • Code (Energieausweis): 20231009018547
  • Jahrgang (Energieausweis):
  • Gültig bis (Energieausweis):

*Kaufen Sie vor dem 31. Dezember 2025 und sparen Sie 15 % Mehrwertsteuer! (*Gesetzlich geltende Mehrwertsteuer von 21 %, Differenz wird vom Bauträger übernommen. Für alle vor dem 31. Dezember 2025 unterzeichneten Kaufverträge.)

Alle Preise verstehen sich ohne Mehrwertsteuer.

Preis für Wohnung + Garage + Parkplatz!

Dieses großzügige Apartment bietet Ihnen auf einer Wohnfläche von 88,24 m² ein durchdachtes Raumkonzept:

Flur
– Zwei Schlafzimmer – für erholsame Nächte
– Modernes Badezimmer mit WC
– Elegante Küche – inklusive!
– Helles Wohnzimmer – ideal zum Entspannen
– Gemütliches Esszimmer – perfekt für gesellige Abende
– Technikraum – für zusätzlichen Stauraum

Weitere Highlights:

Terrasse – genießen Sie entspannte Stunden im Freien
Privater Außenstellplatz & Garage – komfortabel und sicher
Hochwertige Ausstattung inklusive: Küche, Bad, Innentüren und Wandfarbe sind im Preis inbegriffen!

Alle Preise verstehen sich zzgl. MwSt.

Kontaktieren Sie uns gerne für mehr Infos oder einen persönlichen Besichtigungstermin:
+32 80 60 50 20

Anbieter kontaktieren

  • Dieses Feld dient zur Validierung und sollte nicht verändert werden.