St.Vith

Exklusives Appartement Nr. 4 – Ihr neues Zuhause mit Stil und Komfort!

Schlafzimmer: 2 Wohnfläche: 88 m² Heizung: Gas Fußbodenheizung Baujahr: 2025
  • Energieklasse:
  • Espec: 79  kWh/m2.a
  • Etotal: 9.699  kWh/a
  • Code (Energieausweis): 20231009019294
  • Jahrgang (Energieausweis):
  • Gültig bis (Energieausweis):

*Kaufen Sie vor dem 31. Dezember 2025 und sparen Sie 15 %!

Für alle Kaufverträge, die vor dem 31. Dezember 2025 unterzeichnet werden.

Alle Preise verstehen sich ohne Mehrwertsteuer.

Preis für Wohnung + Garage + Parkplatz!

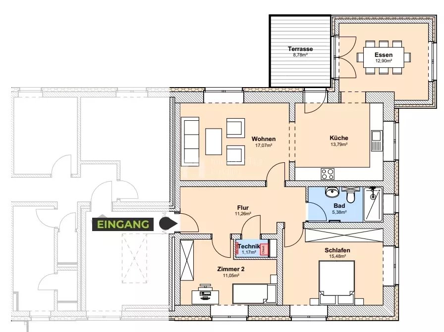
Das Appartement 4 verfügt über eine Wohnfläche von 88,10 m² und setzt sich wie folgt zusammen :

Flur
2 Schlafzimmer – für erholsame Nächte
Modernes Badezimmer mit WC
Elegante Küche – inklusive!
Helles Wohnzimmer – zum Entspannen
Gemütliches Esszimmer – perfekt für gesellige Abende
Technikraum – für mehr Stauraum

Weitere Highlights:

Terrasse – genießen Sie entspannte Stunden im Freien
Privater Außenparkplatz & Garage – komfortabel und sicher
Hochwertige Ausstattung inklusive: Küche, Bad, Türen und Anstrich sind bereits enthalten!

Rodt ist bekannt für seine zahlreichen Wanderwege und bietet im Winter schöne Langlaufpisten. Wichtig zu erwähnen ist ebenfalls die zentrale Lage, denn Rodt liegt nicht nur in unmittelbarer Nähe zu St.Vith mit all seinen wichtigen Infrastrukturen des Alltags, sondern auch nur wenige Kilometer von Luxemburg und Deutschland entfernt.

Kontaktieren Sie uns für weitere Informationen oder eine persönliche Besichtigung! +32 80 60 50 20

Anbieter kontaktieren

  • Dieses Feld dient zur Validierung und sollte nicht verändert werden.