St.Vith

Residenz „Tomberg Terrassen“ in Rodt – APPARTEMENT 6

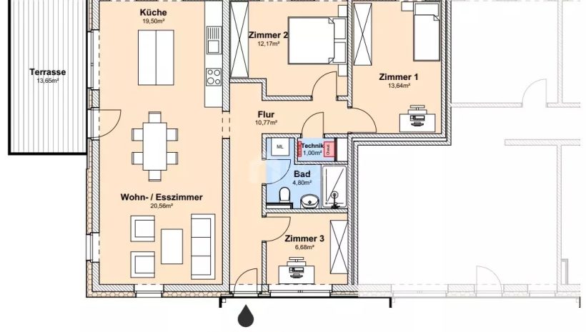
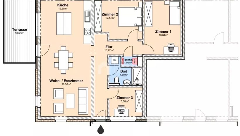
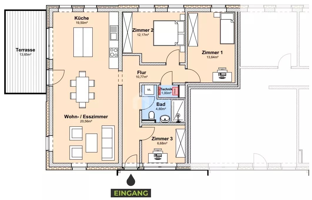
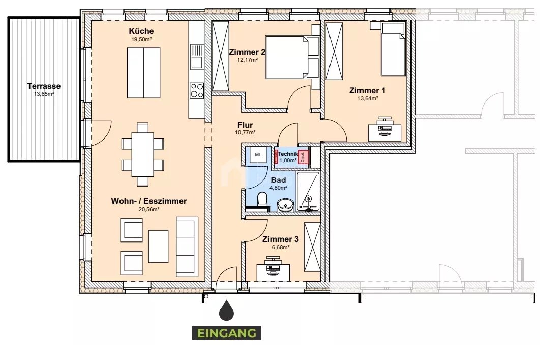
Schlafzimmer: 3 Bäder: 1 Wohnfläche: 89 m² Heizung: Gas Fußbodenheizung Baujahr: 2025
  • Energieklasse:
  • Espec: 71  kWh/m2.a
  • Etotal: 7.858  kWh/a
  • Code (Energieausweis): 20231002010203
  • Jahrgang (Energieausweis):
  • Gültig bis (Energieausweis):

*Kaufen Sie vor dem 31. Dezember 2025 und sparen Sie 15 % Mehrwertsteuer! (*Gesetzlich geltende Mehrwertsteuer von 21 %, Differenz wird vom Bauträger übernommen. Für alle vor dem 31. Dezember 2025 unterzeichneten Kaufverträge.)

Alle Preise verstehen sich ohne Mehrwertsteuer.

Preis für Wohnung + Garage + Parkplatz!

Das Appartement 6 verfügt über eine Wohnfläche von 89,17 m² und setzt sich wie folgt zusammen :

Flur
Drei Schlafzimmer – für erholsame Nächte
Modernes Badezimmer mit WC
Elegante Küche – inklusive!
Helles Wohnzimmer – zum Entspannen
Gemütliches Esszimmer – perfekt für gesellige Abende
Technikraum – für mehr Stauraum

Weitere Highlights:

Terrasse – genießen Sie entspannte Stunden im Freien
Privater Außenparkplatz & Garage – komfortabel und sicher
Hochwertige Ausstattung inklusive: Küche, Bad, Türen und Anstrich sind bereits enthalten!

Rodt ist bekannt für seine zahlreichen Wanderwege und bietet im Winter schöne Langlaufpisten. Wichtig zu erwähnen ist ebenfalls die zentrale Lage, denn Rodt liegt nicht nur in unmittelbarer Nähe zu St.Vith mit all seinen wichtigen Infrastrukturen des Alltags, sondern auch nur wenige Kilometer von Luxemburg und Deutschland entfernt.

Die Residenz ist so gut wie bezugsfertig.
Die angegebenen Preise verstehen sich ohne Mehrwertsteuer.

Kontaktieren Sie uns für weitere Informationen oder eine persönliche Besichtigung! +32 80 60 50 20

Anbieter kontaktieren

  • Dieses Feld dient zur Validierung und sollte nicht verändert werden.