Herbesthal

Tolle Doppelhaushälfte in ruhiger Spielstraße (Sackgasse), perfekt für Grenzgänger und kleine Familien

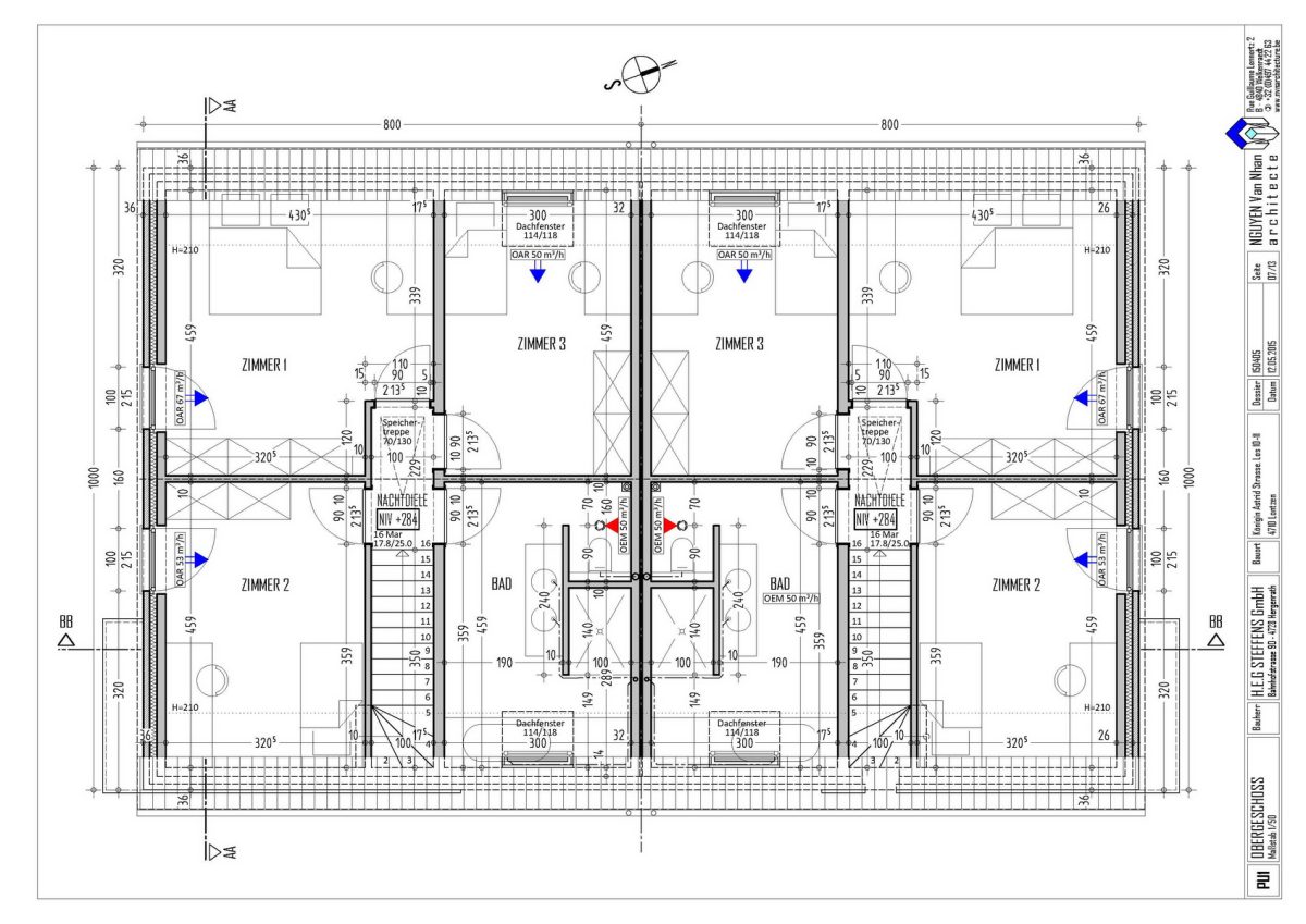
Schlafzimmer: 3 Bäder: 1 Grundstück: 310 m² Wohnfläche: 127 m² Nutzfläche: 36 m² Parkplätze: 3 Heizung: Fußbodenheizung & Heizkörper Baujahr: 2026
  • Energieklasse:
  • Espec: 128  kWh/m2.a
  • Etotal: 19.526  kWh/a
  • Code (Energieausweis): RWPEB-047871
  • Jahrgang (Energieausweis): 2016
  • Gültig bis (Energieausweis): 2026

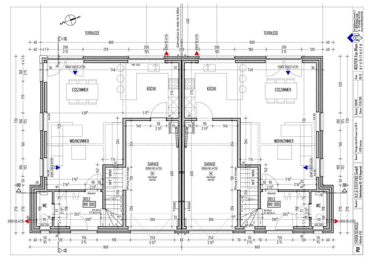
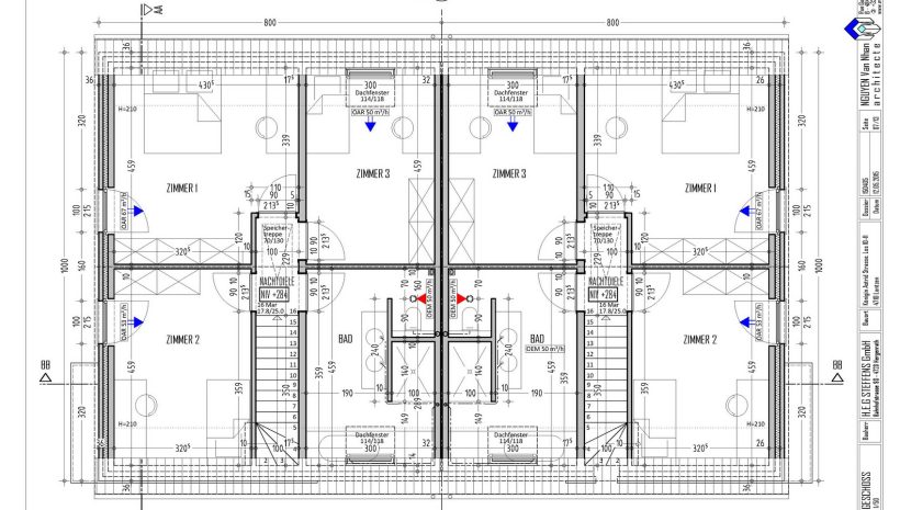
Zum Verkauf steht diese neuwertige, moderne Immobilie in Herbesthal/Lontzen. Im Erdgeschoss befinden sich das offene Wohn- und Esszimmer, eine hochwertige offene Küche mit Siemens-Geräten, Flur und Gäste-WC mit Fenster. Vom lichtdurchfluteten Wohn-Essbereich gelangt man über einen ebenerdigen Zugang zur Terrasse. Diese ist nach Westen ausgerichtet, so dass man nachmittags bis in den Abend hinein noch die Sonne genießen und den Blick Richtung Park schweifen lassen kann. Im Obergeschoss befinden sich 3 Schlafzimmer und das Badezimmer mit Dusche und Badewanne. Eines der Schlafzimmer wurde bislang als Büro genutzt, es eignet sich jedoch hervorragend als zweites Kinderzimmer. Der ausgebaute Dachboden bietet zusätzlichen Stauraum. Für niedrige Energiekosten sorgt eine 10 kW-Photovoltaikanlage mit 8 kW-Wechselrichter. Die Anlage produziert im Schnitt 9000 kWh/Jahr. Vor dem Haus befinden sich 3 Stellplätze, zudem gehört eine Garage zu dieser tollen Immobilie. Kindergarten und Grundschule sind fußläufig erreichbar, alle Geschäfte des täglichen Bedarfs befinden sich in unmittelbarer Umgebung. In 5 Minuten ist man auf der Autobahn und in 10 Minuten bereits am Aachener Kreuz.

Besonderheiten der Immobilie: Das Haus ist perfekt gepflegt. Eine Außenbeleuchtung sorgt auch in den Abendstunden für ein schönes Ambiente. Im Garten finden Sie ein Gartenhaus, wo Sie ausreichend Platz für Ihre Utensilien finden.

Lage der Immobilie: Am Ende einer Sackgasse in einer ruhigen Spielstraße gelegen. Bäcker, Metzgerei und Supermärkte sind fußläufig erreichbar, ebenso ist man schnell in der Natur. Für Familien sind Kindergarten und Grundschule ebenfalls fußläufig erreichbar, zudem gibt es hier ein großes Angebot an Freizeitaktivitäten.

Sonstiges: Sie leben zwar in Belgien, die Immobilie befindet sich aber in der deutschsprachigen Gemeinschaft so dass Sie keinerlei Sprachprobleme haben werden. Das Dreiländereck Deutschland, Niederlande und Belgien bietet unzählige Ausflugsmöglichkeiten und ist aufgrund seiner Vielfältigkeit sehr beliebt.

Königin-Astrid-Straße 18, 4710 Lontzen, Belgien

Anbieter kontaktieren

  • Dieses Feld dient zur Validierung und sollte nicht verändert werden.