Fulpmes

Alpine Rarität in Tirol – Exklusiver Freizeitwohnsitz: traumhafter Bergkulisse am Fuße der Schlick 2000, nahe dem Stubaier Gletscher

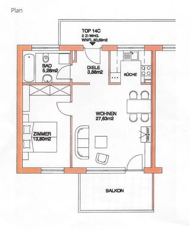
Schlafzimmer: 1 Bäder: 1 Wohnfläche: 51 m² Heizung: Fußbodenheizung
  • Energieklasse:
  • Espec:
  • Etotal:
  • Code (Energieausweis):
  • Jahrgang (Energieausweis):
  • Gültig bis (Energieausweis):

Ihr Traum war schon immer, Besitzer eines Ferienwohnsitzes, bzw. Freizeitwohnsitz in Tirol in Österreich zu sein? Selbst Ski zu fahren oder wandern zu gehen, wann immer Ihnen Lust und Laune danach ist – oder die Immobilie als attraktive Investition über Airbnb zu vermieten?
Dann eröffnet sich Ihnen hier eine ganz besondere Gelegenheit.
Diese besondere Eigentumswohnung liegt im Herzen von Fulpmes, eingebettet in die imposante Bergwelt des Stubaitals und direkt am Fuße des beliebten Skigebiets Schlick 2000. Schon beim Ankommen spürt man die besondere Atmosphäre dieses Ortes: frische Bergluft, majestätische Gipfel, eine wohltuende Ruhe und gleichzeitig das Gefühl, mitten im alpinen Leben zu sein. Diese Immobilie erfüllt den Traum vom eigenen Rückzugsort in Tirol – sei es als privater Ferienwohnsitz oder als hochwertige Kapitalanlage mit genehmigter touristischer Vermietung. Ein entscheidender und äußerst seltener Vorteil ist, dass die Ferienvermietung hier durch einen Gemeinderatsbeschluss ausdrücklich erlaubt ist und auch für neue Eigentümer gilt – eine echte Ausnahme in Tirol und damit von hohem langfristigem Wert.
Die Lage begeistert zu jeder Jahreszeit. Im Winter genießen Sie ein Skivergnügen direkt vor der Haustür: Die Schlick 2000 bietet 23 abwechslungsreiche Abfahrten mit rund 25 Pistenkilometern für Anfänger, Genießer und sportlich ambitionierte Skifahrer gleichermaßen. Das familienfreundliche Skigebiet überzeugt durch kurze Wege, urige Hütten, sonnige Pisten und einen atemberaubenden Blick auf die Kalkkögel, die nicht umsonst als die Dolomiten Nordtirols bezeichnet werden. Im Sommer verwandelt sich die Region in ein wahres Naturparadies. Mit der Gondelbahn gelangen Sie bequem auf über 2.100 Meter Höhe, wo ein weitläufiges Netz an Wander- und Spazierwegen, kristallklare Bergseen, Kletterareale für alle Könnerstufen sowie die spektakuläre Aussichtsplattform StubaiBlick mit unvergleichlicher Fernsicht warten. Ergänzt wird das Freizeitangebot durch Paragleiten an den Elferbahnen, Mountainbike-Touren zu Almen wie der Pfarrachalm oder Froneben Alm sowie die unmittelbare Nähe zum schneesicheren Stubaier Gletscher. Besonders charmant ist die Stubaitalbahn, eine romantische Straßenbahnstrecke, die Fulpmes auf rund 18 Kilometern durch idyllische Lärchenwälder direkt mit Innsbruck verbindet – eine Fahrt, die allein schon ein Erlebnis ist. Die Tiroler Landeshauptstadt erreichen Sie zudem mit dem Auto in etwa 15 Minuten, der Autobahnanschluss Schönberg liegt nur wenige Minuten entfernt.
Die Wohnung selbst befindet sich im dritten Obergeschoss eines gepflegten Mehrfamilienhauses mit Aufzug und überzeugt durch ihre helle, freundliche Atmosphäre sowie ihren sehr gepflegten Zustand. Auf rund 51 m² Wohnfläche eröffnet sich ein harmonisches Raumgefühl, das sofort Geborgenheit vermittelt. Große Fensterflächen lassen viel Tageslicht herein und geben den Blick frei auf die umliegende Bergwelt – ein Panorama, das sich je nach Tages- und Jahreszeit immer wieder neu präsentiert. Der großzügige West-Balkon mit etwa 9 m² ist ein echtes Highlight dieser Wohnung. Hier genießen Sie sonnige Nachmittage und stimmungsvolle Abende, beobachten, wie die Berge im warmen Licht der untergehenden Sonne erstrahlen, und lassen bei einem Glas Wein oder einer Tasse Kaffee den Alltag hinter sich.
Die Raumaufteilung ist durchdacht und komfortabel. Über die ca. 4 m² große Eingangsdiele gelangen Sie in den großzügigen Wohn- und Essbereich mit rund 28 m², der sich wunderbar als zentraler Lebensraum gestalten lässt. Die zum Wohnbereich hin halboffene Küche ist mit einer modernen, zeitlos gestalteten Einbauküche ausgestattet und fügt sich harmonisch in den Raum ein – ideal für gesellige Abende oder entspannte Urlaubstage. Vom Wohnbereich aus erreichen Sie direkt den Balkon, der den Wohnraum im Sommer nahezu erweitert. Das Schlafzimmer mit ca. 14 m² ist ruhig gelegen und bietet beste Voraussetzungen für erholsame Nächte, begleitet von der Stille der Berge. Das Badezimmer ist hell und sauber gefliest, verfügt über ein Fenster, eine Badewanne, ein Waschbecken, ein Hänge-WC sowie einen Waschmaschinenanschluss und rundet das stimmige Wohnkonzept ab.
Zur Wohnung gehören zudem ein Kellerabteil mit ca. 4 m² sowie – optional – ein Tiefgaragenstellplatz zum Kaufpreis von 25.000 €. Dieser ist nicht verpflichtend, bietet jedoch einen erheblichen Komfort, da Sie von der Tiefgarage aus bequem mit dem Aufzug bis direkt vor die Wohnungstür gelangen – besonders angenehm bei jedem Wetter oder nach einem langen Skitag. Technisch überzeugt das Gebäude durch einen Personenaufzug, eine moderne Fußbodenheizung sowie eine umweltfreundliche Zentralheizung auf Basis von Bio-Hackschnitzel. Bodenbeläge aus Fliesen und Parkett unterstreichen den gepflegten und zeitlosen Charakter der Wohnung.
Diese Immobilie vereint auf einzigartige Weise alpinen Lifestyle, Ruhe, Naturerlebnis und eine ausgezeichnete Infrastruktur. Ob als persönlicher Rückzugsort in den Bergen oder als attraktive Investition mit genehmigter Ferienvermietung – diese Wohnung bietet Ihnen all das, wovon viele träumen. Ein Ort, an dem man ankommt, durchatmet und bleibt.

Bahnstraße 34, Fulpmes, Belgien
Bruno Creutz
Bruno Creutz (Euroimmo SRL) 0471 / 391287 info@euroimmo.net

Anbieter kontaktieren

  • Dieses Feld dient zur Validierung und sollte nicht verändert werden.