Raeren

Wohnen zwischen Wald & Grenze – Nachhaltiges, modernes Reihenhaus (Erstbezug) mit Photovoltaik, Einbauküche und ausgebautem Dachgeschoss ! Ideal für Familien & Grenzpendler !

Schlafzimmer: 4 Bäder: 1 Grundstück: 235 m² Wohnfläche: 155 m² Heizung: Wärmepumpe Fußbodenheizung Baujahr: 2026
  • Energieklasse:
  • Espec: 27  kWh/m2.a
  • Etotal: 5.256  kWh/a
  • Code (Energieausweis): 20260115502154
  • Jahrgang (Energieausweis): 2026-01-15
  • Gültig bis (Energieausweis):

Willkommen in Ihrem neuen Zuhause! Dieses hochwertige, kürzlich fertiggestellte Reihenmittelhaus verbindet modernes Wohnen und nachhaltige Bauweise mit einer außergewöhnlichen Lage – unmittelbar am Waldrand des Aachener Waldes und dennoch hervorragend an Autobahn und Grenze angebunden.
Das Grenzdorf Lichtenbusch auf belgischer Seite, unmittelbar am Aachener Südviertel gelegen, bietet grenznahes Wohnen zwischen Belgien und Deutschland in einer grünen, ruhigen und familienfreundlichen Umgebung. Als reines Wohngebiet ist das Viertel überwiegend von Familien geprägt und ideal für alle, die naturnahes Wohnen in entspannter Atmosphäre suchen.
Die unmittelbare Nähe zur deutsch-belgischen Grenze macht diesen Standort besonders attraktiv für Pendler: Arbeitsplätze, Schulen, Einkaufsmöglichkeiten sowie Freizeit- und Kulturangebote sind auf beiden Seiten der Grenze schnell erreichbar. Gleichzeitig genießen Sie die Ruhe von Wiesen und Wäldern direkt vor der Haustür.
Das Haus wurde kürzlich fertiggestellt ( Baujahr 2025 & 2026) und wird als Erstbezug angeboten. Es entspricht modernsten Wohn- und Energiestandards und überzeugt durch eine hochwertige Bauweise. Eine Photovoltaikanlage mit Speicher, eine Wärmepumpe sowie Fußbodenheizung im Erd- und Obergeschoss sorgen für nachhaltiges und zukunftssicheres Wohnen.
Die helle Fassade mit freundlichem Außenputz und stilvollen Holzakzenten unterstreicht den zeitgemäßen Charakter der Immobilie. Das Haus ist bereits bezugsfertig: Wände und Decken sind weiß gestrichen, eine moderne Einbauküche ist installiert und der Garten inklusive Terrasse sind angelegt. Es bedarf lediglich noch der persönlichen Einrichtung, um ein individuelles Zuhause zu schaffen.
Das Grundstück umfasst eine Fläche von ca. 235 m² und bietet neben dem Garten & Terrasse im rückwärtigen Bereich eine geschotterte Einfahrt mit zwei Außenstellplätzen.
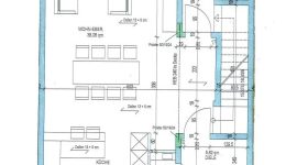
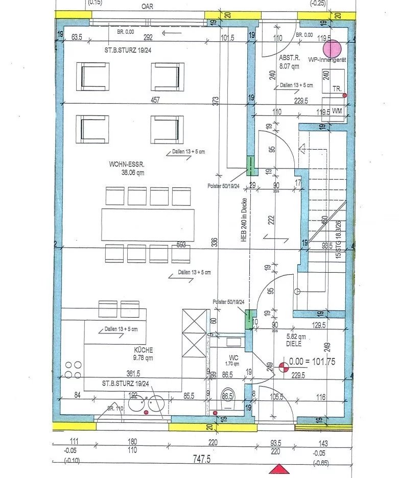
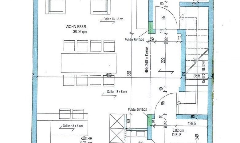
Die Wohnfläche beträgt insgesamt ca. 155 m² und verteilt sich auf Erdgeschoss, Obergeschoss sowie ein vollständig ausgebautes Dachgeschoss, sodass ausreichend Platz für die gesamte Familie vorhanden ist.
Im Erdgeschoss empfängt eine Eingangsdiele mit Gäste-WC den Bewohner und führt direkt in das Herzstück des Hauses, den hellen und großzügigen Wohn- und Essbereich mit einer Fläche von ca. 38 m². Die offen gestaltete Küche mit ca. 10 m² ist hochwertig ausgestattet und in Weiß mit Holzelementen gehalten, wodurch sie sich harmonisch in den Wohnraum integriert. Eine Theke lädt zum Frühstücken oder zum geselligen Beisammensein während des Kochens ein. Der Wohnbereich ist modern gefliest und bietet über eine Schiebetür direkten Zugang zur Terrasse und zum Garten, der sich ideal als Rückzugsort nach einem langen Tag oder für entspannte Stunden mit Familie und Freunden eignet.
Vom Wohnbereich aus gelangt man zudem in den ca. 8 m² großen Hauswirtschaftsraum, der ebenfalls einen Zugang zum Außenbereich bietet. Hier findet auch die Waschmaschine ihren Platz!
Über eine geflieste Treppe erreicht man das Obergeschoss, den privaten Rückzugsbereich des Hauses. Hier befinden sich drei Schlafzimmer mit ca. 18 m², 15 m² und 12 m² sowie ein modernes Badezimmer mit Dusche, Badewanne und WC. Alle Räume sind zeitlos gefliest und bieten eine helle und pflegeleichte Wohnatmosphäre. Der Flur verfügt über einen Garderobenbereich.
Das ausgebaute Dachgeschoss mit einer Fläche von ca. 34 m² ist mit Dachfenstern ausgestattet und wird durch natürliches Tageslicht angenehm erhellt. Dieser Bereich eignet sich hervorragend als zusätzliches Schlafzimmer, Homeoffice, Hobbyraum oder persönlicher Rückzugsort und lässt sich flexibel nach individuellen Bedürfnissen gestalten.
Insgesamt bietet diese Immobilie eine gelungene Kombination aus moderner Architektur, nachhaltiger Technik, durchdachter Raumaufteilung und einer außergewöhnlich attraktiven Lage. Ein ideales Zuhause für alle, die naturnah wohnen und gleichzeitig von einer optimalen Anbindung sowie der besonderen Lebensqualität im Grenzraum profitieren möchten.
Die monatliche Kaltmiete beläuft sich auf 1.500 €; die Immobilie ist ab dem 01. März bezugsfrei.

Johannisberg, Raeren, Belgien
Bruno Creutz
Bruno Creutz (Euroimmo SRL) 0471 / 391287 info@euroimmo.net

Anbieter kontaktieren

  • Dieses Feld dient zur Validierung und sollte nicht verändert werden.